Modern icf house plans.

Icf floor plans.
Whether youre planning from the start or need help in modifying existing plans well help ensure new home purchases can dream big as well as think green by building with logix.
However a number of plans featured on our site that call for concrete or icf insulated concrete form exterior walls were designed for lots all over the us.
Modifications and custom home design are also available.
See more ideas about house plans icf home and insulated concrete forms.
The icf forms are simple to cut and shape and may include customized architectural effects such as curved walls large openings long ceiling spans custom angles and cathedral ceilings.
As the house has solid concrete.
Beyond the exterior walls these home plans are like other homes in terms of exterior architectural styles and layouts of floor plans.
Most of our floor plans can be converted to icf or 8 block construction so if you see a home design thats not in our icf collection please email live chat or call us at 866 214 2242 and wed be happy to assist you.
Because of the increasing popularity of icf homes many architects and design companies have an assortment of home plans ready to use for icf construction saving you the time and cost of conversion.
Also popular now are exterior walls made of insulated concrete forms icfs.
Benefits of concrete icf floor plans.
Apr 10 2018 explore brisbykings board icf cool house plans on pinterest.
Because of concretes strength and flexibility icfs can accommodate most any size or style of a house plan a homeowner can dream up.
And canada please note.
Thats where icf and concrete block construction come into the picture.
Free ground shipping available to the united states and canada.
Browse our large selection of house plans to find your dream home.
With a wide variety of home plans with icf walls we are sure that you will find the perfect energy efficient home design to fit your needs and lifestyle.
House plans and more features many icf house plans.
These homes are recognized for their thermal efficiency which means more energy savings.
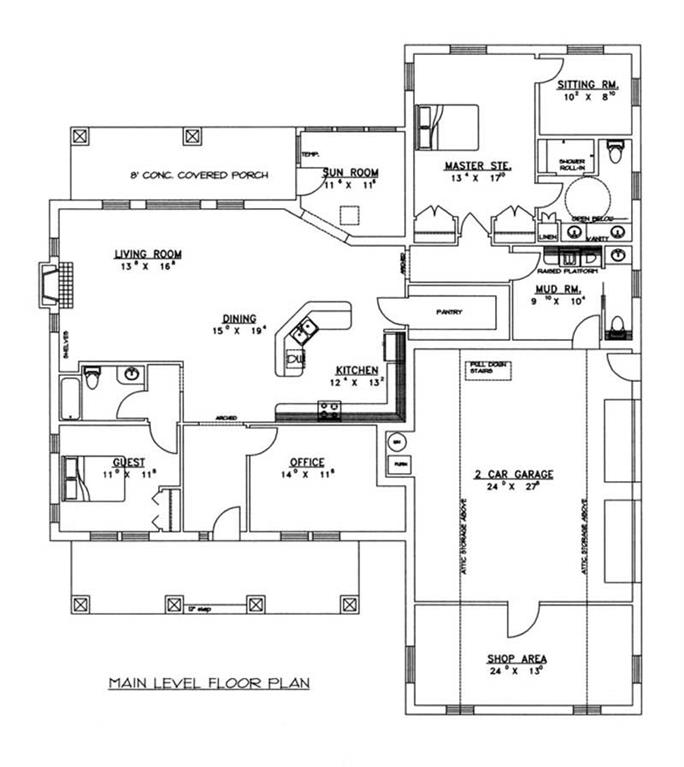
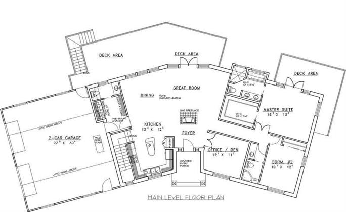
We offer easy to read floor plans that allow a home buyer to envision the look of the entire house down to the smallest of details.
Many of our concrete and icf house plans were created for coastal areas like florida where theyre required because of the threat of hurricanes.
The strongest advantage is the impressive strength and reliability that comes from concrete construction.
Our concrete house plans are designed to offer you the option of having exterior walls made of poured concrete or concrete block.
Almost any home plan can be converted to icf construction either by your builder or the plans designer.
50 New Of Concrete Block House Plan Pic Daftar Harga Pilihan
Home Plans
Country Icf House Plan 2069 Toll Free 877 238 7056
Insulated Concrete Form Or Icf House Plans
Pre Designed Homes Icf Homes
Anatomy Of An Icf Plan Conversion Design Basics
Splendid Icf House Plans Flat Roof Elegant Simple Concrete Block
Icf Plans Concrete Block Icf Design Country House Plans Home
Buildblock Icf Home Plans
New Home Floor Plans Fresh 15 New Small Icf House Plans
Disadvantages Of Having Small Icf House Plans Honey Shack Dallas
Sizing Wood Stove In Icf Home Greenbuildingtalk
Craftsman Concrete Block Icf Design House Plans Home Design
Concrete Block House Plan Fresh Concrete Block Icf Design Country
Concrete House Plans Icf And Concrete Block Modern Home
Icf House Plans With Walkout Basement Gif Maker Daddygif Com
Home Plan 001 2013 Home Plan House Plans House Design
Insulated Concrete Foam Icf Home Plans House Plans And More
Icf House Plan 40815db Architectural Designs House Plans
Precast Concrete House Plans
Icf Construction What You Need To Know About An Icf Home
4 Bed Icf House Plan With Plush Master Suite 40758db
Designing Your Dream Home With Buildblock Icfs
Elite Modern Concrete Block House Plans Icf Homes Problems Ultra
Modern Concrete House Plans
Icf Plans
Icf House Plans For A Green Earth Sheltered 4 Bedroom Home Home
26 30 2 Story Icf House Cnadesigndraft
Beachfront Coastal Mediterranean Spanish Concrete Block Icf
Best Room Management Applied In Icf Home Plans Equipped With Large
Small Cinder Block House Plans
Benefits Of Concrete Icf House Plans The House Designers
Icf House Plans E Architectural Design
Concrete House Plans Benefits Icf House Plans 149282
Icf Home Plans Elegant Plans For Homes Free Icf Mountain House
Picture Of Icf Home Plans Girlwich Icf House Plans Image House
Modern Icf House Plans
Florida Custom Home Builder Green Home Builder Icf Builder
Icf House Plans With Walkout Basement Icf Floor Plans Dc Assault Org
Icf Rancher House Plan 2196 Toll Free 877 238 7056 Custom
Icf House Plans Modern 20 Awesome Simple Floor Plan Maker Free
Icf House Plans Designing An Energy Efficient Modern Icf Home
Concrete Block Icf Design House Plan 4 Bedrms 3 Baths 2022
Fox Blocks House Plans Small Icf House Plans 21 Best Cinder Block
Luxury Mediterranean House Plans Farmhouse Coastal Floor Elegant
Insulated Concrete Foam Icf Home Plans House Plans And More
Concrete And Icf House Plans Architecturalhouseplans Com
5 Things You Didn T Know About Insulated Concrete Form
Icf Plans Concrete Block Icf Design Country House Plans Home
Plan 052h 0023 The House Plan Shop
Home Plan 001 2029 Home Plan Cabin House Plans Bungalow
Icf Home Plans House Framework Construction Amazing Horsehouse
Icf Home Plans Abercrombies Club
How To Do An Icf Takeoff From A Set Of Plans Youtube
Country Concrete Block Icf Design House Plans Home House Plans
Icf House Plan 40740db Architectural Designs House Plans
Concrete House Plans Icf And Concrete Block Modern Home
House Plans With Exterior Concrete Walls Florida Plans At
Vercelli 41539 The House Plan Company
Rustic Ranch Ranch Floor Plans Rustic Floor Plans Archival
Icf House Plans Designing An Energy Efficient Modern Icf Home
Crestridge Florida House Plan Gast Homes
Anatomy Of An Icf Plan Conversion Design Basics
Concrete Home Plans House Plans Sater Design Collection
Concrete Block Icf House Plans A Vintage Style Is On The Rise Again
Beachfront Designs Coastal House Plans Mediterranean House Plans
Insulated Concrete Forms Icf House Plans Design Basics
Floor Plans Of An Icf House Thermohouse
Icf House Plans 2 Story Home With Separate Master Suite
Concrete Block Icf Design House Plans Home Design Ghd 2043 9420
Insulated Concrete Form Or Icf House Plans
Gated Castle Tower Home 5 Bedrooms Tyree House Plans
Tiny Icf House Plan
Ranch House Plans Contemporary 1 Bedroom With Icf Walls
Image Of Foam Block Construction House Plans New Icf House Plans
House Plans And What We Re Doing Next My Icf House
19 Awesome Icf House Floor Plans
Concrete House Plans Benefits Icf House Plans 149282
Icf House Plans Designing An Energy Efficient Modern Icf Home
Plan 6793mg Adobe Style House Plan With Icf Walls Courtyard
Unique Passive Solar House Plans Amukraine Passive Solar Home
Buildblock Insulating Concrete Forms How To Build An Icf Home
Icf Home Plans Abercrombies Club
Small House Plans
4 Advantages Of Icf House Plans When Building A Home
Icf House Plans For A Narrow 1 Story Home With 1 Bedroom
Cool Energy Efficient Concrete House Plans Houseplans Blog
Concrete House Plans Modern Decorating Ideas 7868800335
Cool Energy Efficient Concrete House Plans Houseplans Blog
Crestridge Florida House Plan Gast Homes
Icf House Plans Modern 20 Awesome Simple Floor Plan Maker Free
Insulated Concrete Form Or Icf House Plans
Icf Home Plans Abercrombies Club
Icf House Plans E Architectural Design
Modern Icf Home Plans With House Plans Excellent U Shaped Picture
Icf House Plans For A Green Earth Sheltered 4 Bedroom Home
Icf House Plans Thermohouse
Concrete Home Plans House Plans Sater Design Collection