Japan 3rd Floor

The First Class Project Trip Report I Japan Hotel Gracery Ginza

The First Class Project Trip Report I Japan Hotel Gracery Ginza

Japan 3rd Floor Reviews Philippines Burpple

Japan 3rd Floor Reviews Philippines Burpple

At Da Vinci A Great Piano Bar On The 3rd Floor Yelp

At Da Vinci A Great Piano Bar On The 3rd Floor Yelp

Tokyo Japan January 17 2018 A Mailbox Is Installed At Haneda

Tokyo Japan January 17 2018 A Mailbox Is Installed At Haneda

Long Ride Japan 3rd Floor By Rasta Lalas Youtube

Long Ride Japan 3rd Floor By Rasta Lalas Youtube

Csj Lucky House In Shinjuku 3rd Floor Tokyo Japan

Csj Lucky House In Shinjuku 3rd Floor Tokyo Japan

Not Ninja Kyocera Dome 1 Room 3rd Floor Nishi Japan

Not Ninja Kyocera Dome 1 Room 3rd Floor Nishi Japan

12 Intense Days In Japan 3rd Day In Tokyo Nathalie S Backyard

12 Intense Days In Japan 3rd Day In Tokyo Nathalie S Backyard

Vending Machines Of Plastic Eggshells Gacha Or Gachapon At

Vending Machines Of Plastic Eggshells Gacha Or Gachapon At

Tokyo Japan January 2018 Haneda Airport International Passenger

Tokyo Japan January 2018 Haneda Airport International Passenger

Tokyo Japan 3rd Apr 2015 Saburo Kawabuchi Basketball 2024

Tokyo Japan 3rd Apr 2015 Saburo Kawabuchi Basketball 2024

Csj Lucky House In Shinjuku 3rd Floor Shinjuku Japan

Csj Lucky House In Shinjuku 3rd Floor Shinjuku Japan

Entire Home Apt In Nishinari Ward Osaka Japan 3rd Floor No

Entire Home Apt In Nishinari Ward Osaka Japan 3rd Floor No

Ocean View 3rd Floor 1 Minute Coast 3 Ldk 70 M Condos Zur

Ocean View 3rd Floor 1 Minute Coast 3 Ldk 70 M Condos Zur

3rd Floor Small Delivery From Kumagai Shun 熊谷峻から小納品

3rd Floor Small Delivery From Kumagai Shun 熊谷峻から小納品

Ezone Uplift Your Esports Experience From 2020 At This Hotel

Ezone Uplift Your Esports Experience From 2020 At This Hotel

Long Boarding Part 2 Japan 3rd Floor By Rasta Lalas Youtube

Long Boarding Part 2 Japan 3rd Floor By Rasta Lalas Youtube

Book Santiago Guesthouse Naha In Okinawa Main Island Japan 2020

Book Santiago Guesthouse Naha In Okinawa Main Island Japan 2020

Tokyo Japan 3rd Apr 2020 Bus Ticket Machines Into Downtown

Tokyo Japan 3rd Apr 2020 Bus Ticket Machines Into Downtown

The Ultimate Sleepover Experience Tokyo Japan Travel

The Ultimate Sleepover Experience Tokyo Japan Travel

Tokyo Japan 3rd October 2016 Travelers Stock Photo Edit Now

Tokyo Japan 3rd October 2016 Travelers Stock Photo Edit Now

Departure Lobby Haneda Airport Tokyo Japan The 3rd Floor Flickr

Departure Lobby Haneda Airport Tokyo Japan The 3rd Floor Flickr

Tokyo Japan January 17 2018 Haneda Airport International

Tokyo Japan January 17 2018 Haneda Airport International

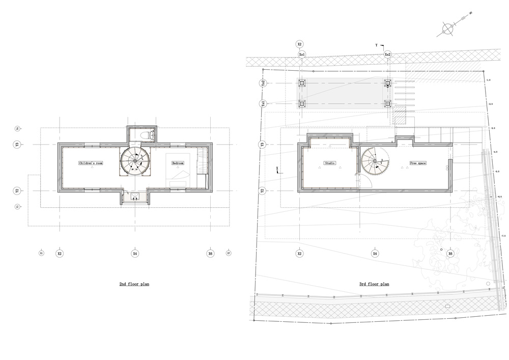
Tomoaki Uno Architects Places Concrete Wood Residence On Steep

Tomoaki Uno Architects Places Concrete Wood Residence On Steep

Kotoba Family House 3rd Floor 5 Rooms ōsaka Japan J2ski

Kotoba Family House 3rd Floor 5 Rooms ōsaka Japan J2ski

Glory One Kotobuki 3rd Floor Fukuoka Japan Fukuoka Hotel

Glory One Kotobuki 3rd Floor Fukuoka Japan Fukuoka Hotel

Pdf Norovirus Outbreaks At Nursing Homes In Osaka Japan

Pdf Norovirus Outbreaks At Nursing Homes In Osaka Japan

Japan 3rd Floor Burpple 7 Reviews Philippines

Japan 3rd Floor Burpple 7 Reviews Philippines

Endo Shojiro Design And Td Atelier Convert A Narrow Building Into

Endo Shojiro Design And Td Atelier Convert A Narrow Building Into

Connect Japanese Opposite To Hampankatta Post Office Pai Land

Connect Japanese Opposite To Hampankatta Post Office Pai Land

Japan 3rd Floor Home Facebook

Japan 3rd Floor Home Facebook

Apartment 3rd Floor Vacation Stay 42609 Naha Japan Booking Com

Apartment 3rd Floor Vacation Stay 42609 Naha Japan Booking Com

Japan 3rd Floor Reviews Philippines Burpple

Japan 3rd Floor Reviews Philippines Burpple

Okinawa Drunk Man Flings Wife From 3rd Floor Balcony

Okinawa Drunk Man Flings Wife From 3rd Floor Balcony

Japan 3rd Floor Building

Japan 3rd Floor Building

Duo Condominium In Kyoto In Japan Duo Condo Kyoto Reviews

Duo Condominium In Kyoto In Japan Duo Condo Kyoto Reviews

New Model For Public Libraries From Japan

New Model For Public Libraries From Japan

3rd Floor Exhibition Room Japan Mint

3rd Floor Exhibition Room Japan Mint

2nd Sunrise Building 3rd Floor Vacation Stay 8662 Toyonaka

2nd Sunrise Building 3rd Floor Vacation Stay 8662 Toyonaka

An Elevator Reaches To The 3rd Floor Boutique Of The Japanese

An Elevator Reaches To The 3rd Floor Boutique Of The Japanese

The Biggest Camera Store In The World Japan Fujifilm X System

The Biggest Camera Store In The World Japan Fujifilm X System

Japan 3rd Floor Reviews Facebook

Japan 3rd Floor Reviews Facebook

One Omotesando Kitaaoyma Minatoku Tokyo Japan Kengo Kuma

One Omotesando Kitaaoyma Minatoku Tokyo Japan Kengo Kuma

4 20 At Japan 3rd Floor Home Facebook

4 20 At Japan 3rd Floor Home Facebook

That Should At Japan 3rd Floor By Kristine Kaye Dolloso On

That Should At Japan 3rd Floor By Kristine Kaye Dolloso On

Firsthouse Yokohama Aoba 3rd Floor Is Only For Women Share

Firsthouse Yokohama Aoba 3rd Floor Is Only For Women Share

5 Years After The Great East Japan Earthquake 2011 Tsunami Left

5 Years After The Great East Japan Earthquake 2011 Tsunami Left

Kojimachi House Tokyo Japan For Sale Ft Property Listings

Kojimachi House Tokyo Japan For Sale Ft Property Listings

Google Maps Terminal 1 3rd Floor Shops Ata Distance

Google Maps Terminal 1 3rd Floor Shops Ata Distance

Tokyo Japan January 17 2018 Haneda Airport International

Tokyo Japan January 17 2018 Haneda Airport International

Csj Lucky House In Shinjuku 3rd Floor Shinjuku Japan

Csj Lucky House In Shinjuku 3rd Floor Shinjuku Japan

Facilities Find Us Okamura

Facilities Find Us Okamura

Tokyo Japan January 17 2018 Hundreds Of Vending Machines Of

Tokyo Japan January 17 2018 Hundreds Of Vending Machines Of

Japan 3rd Floor Home Facebook

Japan 3rd Floor Home Facebook

Fresh Sushi Set Stock Image Image Of Sushi Sapporo 104489981

Fresh Sushi Set Stock Image Image Of Sushi Sapporo 104489981

The Micro Museum Ryokan Asakusabashi Tokyo Japan Book Now

The Micro Museum Ryokan Asakusabashi Tokyo Japan Book Now

Glamorous House 3rd Floor Japan Cd New Micky U Ki 131557908

Glamorous House 3rd Floor Japan Cd New Micky U Ki 131557908

Screening Of Korean Schools In Japan 100 Years Of Struggle

Screening Of Korean Schools In Japan 100 Years Of Struggle

Le Clos Bijou Suites In Osaka Japan 20 Reviews Prices Planet

Le Clos Bijou Suites In Osaka Japan 20 Reviews Prices Planet

Miga Pa Diin Kamo Japan 3rd Floor Willy Wonka Meme Generator

Miga Pa Diin Kamo Japan 3rd Floor Willy Wonka Meme Generator

3rd Floor Penthouse Heart Of Tko Apartments For Rent In

3rd Floor Penthouse Heart Of Tko Apartments For Rent In

Okura Hotels Resorts Kyoto Hotel Okura 3rd Floor Banquet

Okura Hotels Resorts Kyoto Hotel Okura 3rd Floor Banquet

Kotoba Family House 3rd Floor 5 Rooms ōsaka Japan J2ski

Kotoba Family House 3rd Floor 5 Rooms ōsaka Japan J2ski

Firsthouse Toyosu 3rd Floor Is Only For Women Share House In

Firsthouse Toyosu 3rd Floor Is Only For Women Share House In

Japan Kansai Airport Kix Interior Terminal One International

Japan Kansai Airport Kix Interior Terminal One International

Trip To Japan 3rd Floor Youtube

Trip To Japan 3rd Floor Youtube

Super Deluxe 3rd Floor Brand New 3 Bed 3 Wash Apartment With

Super Deluxe 3rd Floor Brand New 3 Bed 3 Wash Apartment With

Ismir 2009 10th International Society For Music Information

Ismir 2009 10th International Society For Music Information

Niseko Kid S Club Opening Today 8th Dec News Niseko Japan

Niseko Kid S Club Opening Today 8th Dec News Niseko Japan

Japan 3rd Floor Youtube

Japan 3rd Floor Youtube

Japan 3rd Floor

Japan 3rd Floor

Japan 3rd Floor Youtube

Japan 3rd Floor Youtube

Catch Big In Japan At The 3rd Floor Bridgeway Of Rockwell Flickr

Catch Big In Japan At The 3rd Floor Bridgeway Of Rockwell Flickr

Mcfly Room On The 3rd Floor Cd Japan Uici 9006 Obi 2004 For Sale

Mcfly Room On The 3rd Floor Cd Japan Uici 9006 Obi 2004 For Sale

Tod S Store Omotesando Tokyo Tokyo Japan Toyo Ito Associates

Tod S Store Omotesando Tokyo Tokyo Japan Toyo Ito Associates

Entrepreneurship In Japan Pitt Business University Of Pittsburgh

Entrepreneurship In Japan Pitt Business University Of Pittsburgh

Apartment 3rd Floor Vacation Stay 42609 Naha Japan Booking Com

Apartment 3rd Floor Vacation Stay 42609 Naha Japan Booking Com

Apartment 3rd Floor Vacation Stay 42609 Naha Japan Booking Com

Apartment 3rd Floor Vacation Stay 42609 Naha Japan Booking Com

Network Information 94th Ietf Yokohama Japan

Network Information 94th Ietf Yokohama Japan

Ana Crowne Plaza Osaka Ebrochure 2018 Ihg Japan

Ana Crowne Plaza Osaka Ebrochure 2018 Ihg Japan

Dora Love Japan Alice Iris Cat Cage 2nd Floor 3rd Floor Oversized

Dora Love Japan Alice Iris Cat Cage 2nd Floor 3rd Floor Oversized

Bach Collegium Japan On Twitter Hi From The Back Of The 3rd

Bach Collegium Japan On Twitter Hi From The Back Of The 3rd

Toranomon Hills Toshiba Elevator And Building Systems Corporation

Toranomon Hills Toshiba Elevator And Building Systems Corporation

Direction Sign On The 3rd Floor Picture Of Brussels Welcome

Direction Sign On The 3rd Floor Picture Of Brussels Welcome

Tod S Store Omotesando Tokyo Tokyo Japan Toyo Ito Associates

Tod S Store Omotesando Tokyo Tokyo Japan Toyo Ito Associates

Japan 3rd Floor Burpple 7 Reviews Philippines

Japan 3rd Floor Burpple 7 Reviews Philippines

Osaka Japan 3rd April 2017 Floating Stock Photo Edit Now 689132470

Osaka Japan 3rd April 2017 Floating Stock Photo Edit Now 689132470

3rd Floor Christ Bible Seminary Cbi Japan

3rd Floor Christ Bible Seminary Cbi Japan

Tods Store Tokyo Japan Architect Toyo Ito Tods Store 3rd Floor

Tods Store Tokyo Japan Architect Toyo Ito Tods Store 3rd Floor

Tetsuo Kobori Architects Is A Tokyo Based Company 3rd Floor

Tetsuo Kobori Architects Is A Tokyo Based Company 3rd Floor

3rd Floor Penthouse Heart Of Tko Apartments For Rent In

3rd Floor Penthouse Heart Of Tko Apartments For Rent In

Bieanne On Twitter Off To Japan 3rd Floor See You Later

Bieanne On Twitter Off To Japan 3rd Floor See You Later

Alien Neko Tokyo Fashion Shop 3rd Floor Wigs And Princess Style

Alien Neko Tokyo Fashion Shop 3rd Floor Wigs And Princess Style

Premist Minami Aoyama 3rd Floor Minato Ku Tokyo Japan For

Premist Minami Aoyama 3rd Floor Minato Ku Tokyo Japan For

All Nippon Airways On Twitter Ana Opened A Japanese Foodcourt

All Nippon Airways On Twitter Ana Opened A Japanese Foodcourt

Ismir 2009 10th International Society For Music Information

Ismir 2009 10th International Society For Music Information

Tods Store Tokyo Japan Architect Toyo Ito Tods Store 3rd Floor

Tods Store Tokyo Japan Architect Toyo Ito Tods Store 3rd Floor

Osaka Mj Share House 33 Osaka Japan From Us 27 Booked

Osaka Mj Share House 33 Osaka Japan From Us 27 Booked